全国统一咨询热线:
028-85919393
首页
企业概括
企业简介
企业文化
组织机构
企业历程
企业荣誉
项目展示
在建项目(动力港IIA区)
动力港II(B区)
动力港I
在建项目
工程进度
火炬动力港二期A区
招商招标
招标信息
重要通知
招商信息
人才招聘
联系我们
联系方式
项目展示
CLASSIC CASE
动力港I
动力港II(B区)
在建项目(动力港IIA区)
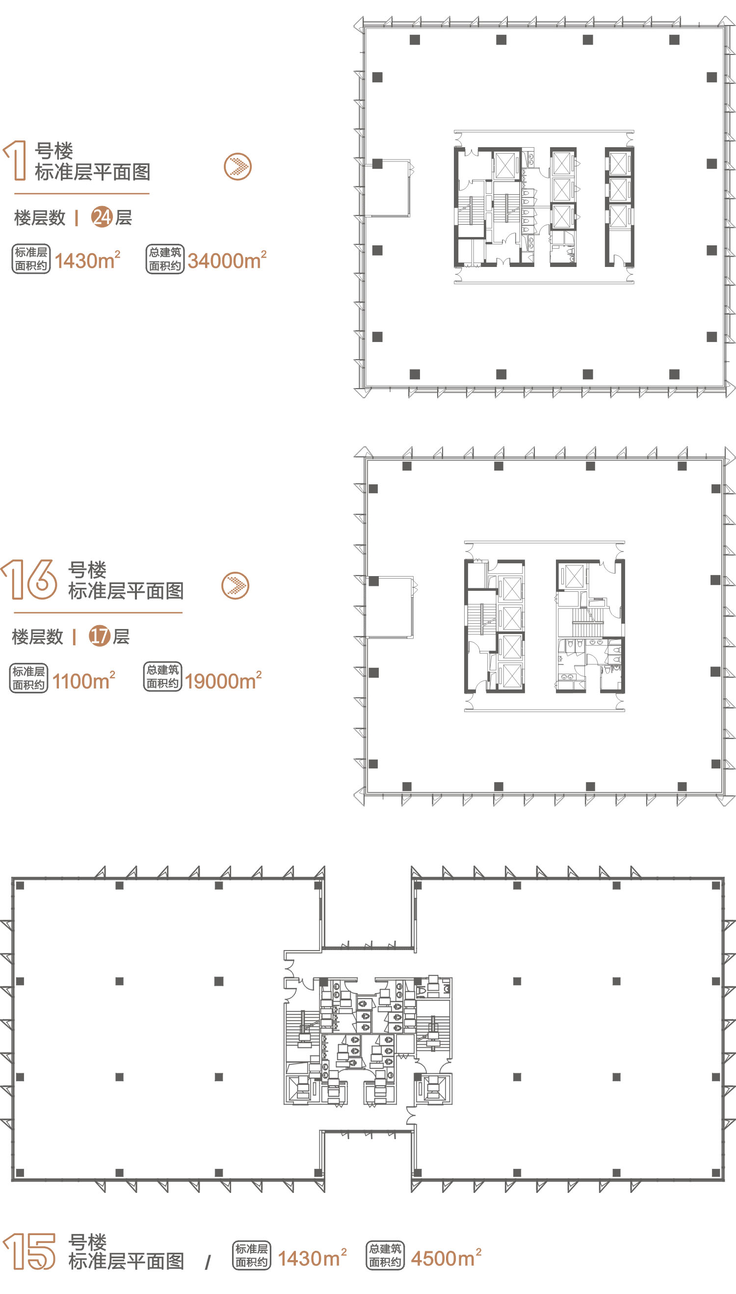
户型图
来源:
火炬置业
发布时间:
2020-03-08
浏览次数:
526
上一篇:
效果图
下一篇:
没有了